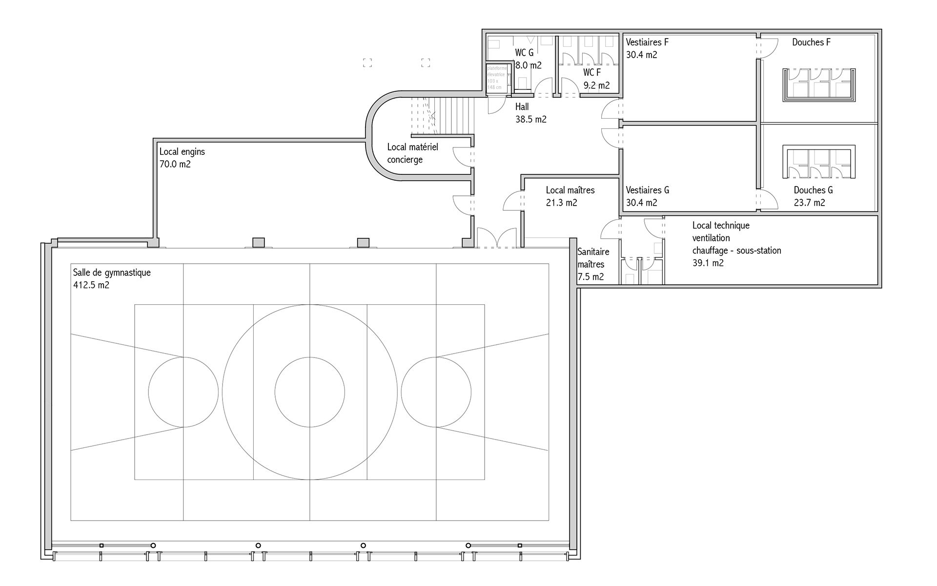
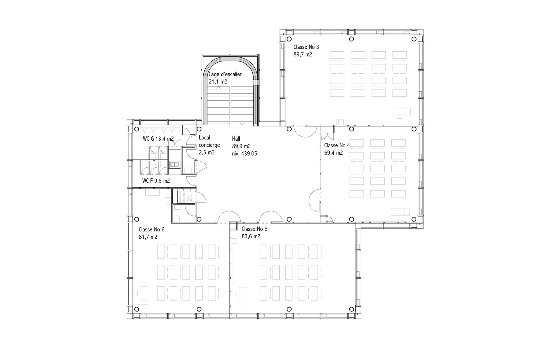
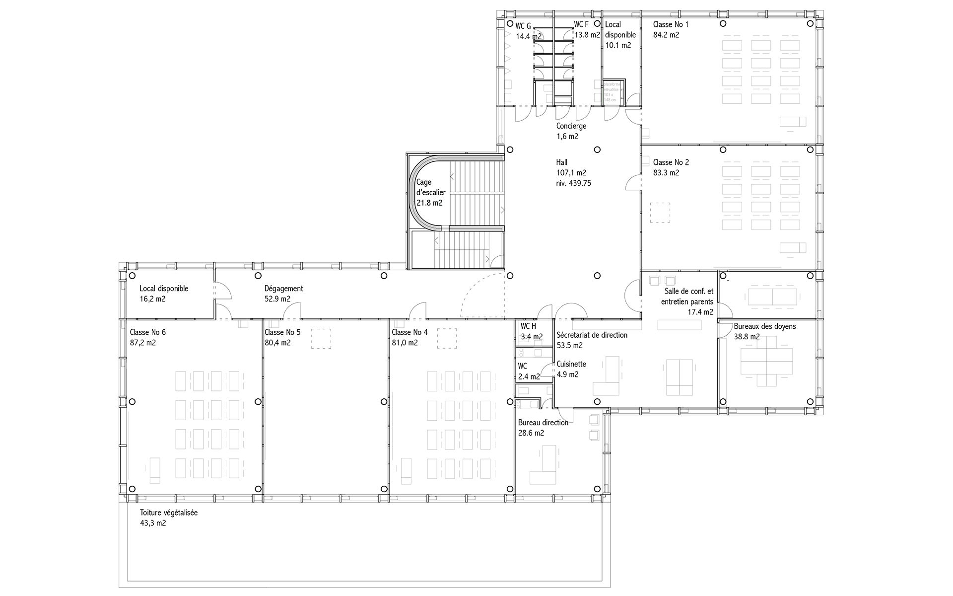
Le projet d’agrandissement consiste à intervenir ponctuellement en quelques endroits stratégiques. Le nouveau réfectoire scolaire est créé dans l’extension du volume existant au sud et profite ainsi du dégagement vers le paysage lémanique. Les autres interventions visent à mettre en conformité parasismique et de protection incendie les bâtiments existants (salle de sport, salles de classe, bureaux administratifs). L’enveloppe des bâtiments répond aux nouveaux standards énergétiques. Le système constructif de type CROCS est conservé dans son essence et sa matérialité. Les aménagements extérieurs sont remaniés pour supprimer les barrières architecturales existantes.
















