Collège du Censuy [br]Renens

Collège du Censuy [br]Renens

CEN_20_C-1920x1200px-300dpi.jpg
k-ej-cens-296.jpg
k-ej-lem2-255.jpg
k-ej-cens-435.jpeg
CEN_31_C-1920x1200px-300dpi.jpg
CEN_12_C-1920x1200px-300dpi.jpg
k-ej-lem2-563.jpg
k-ej-lem2-814.jpg
CENSUY PLAN 2 SS.jpg
CENSUY PLAN 3 REZ.jpg
CENSUY PLAN 4 ETAGE 1.jpg
Sortir du plein écranPasser en mode plein écran
previous arrow
next arrow

Collège du Censuy, Renens

Concours : 2011
Réalisation : 2012-2015

CENSIT5000-1920x1200px-300dpi

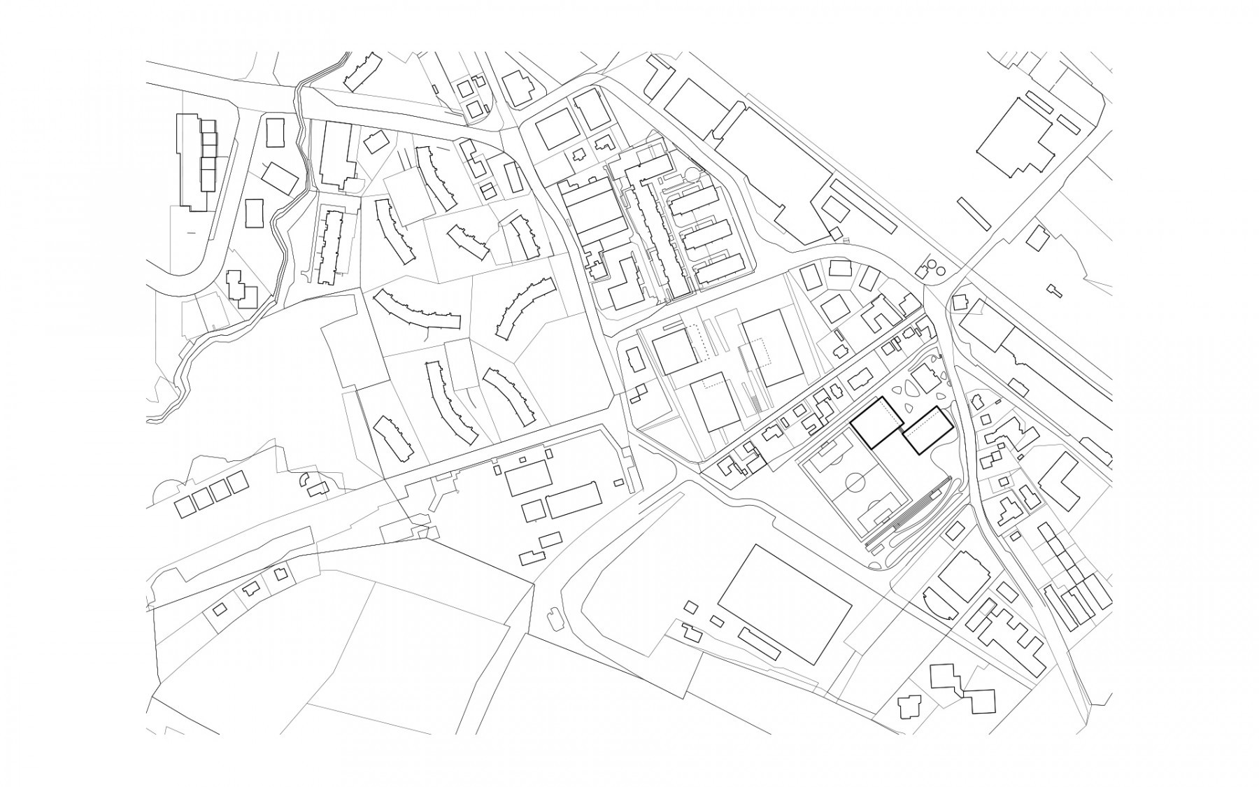
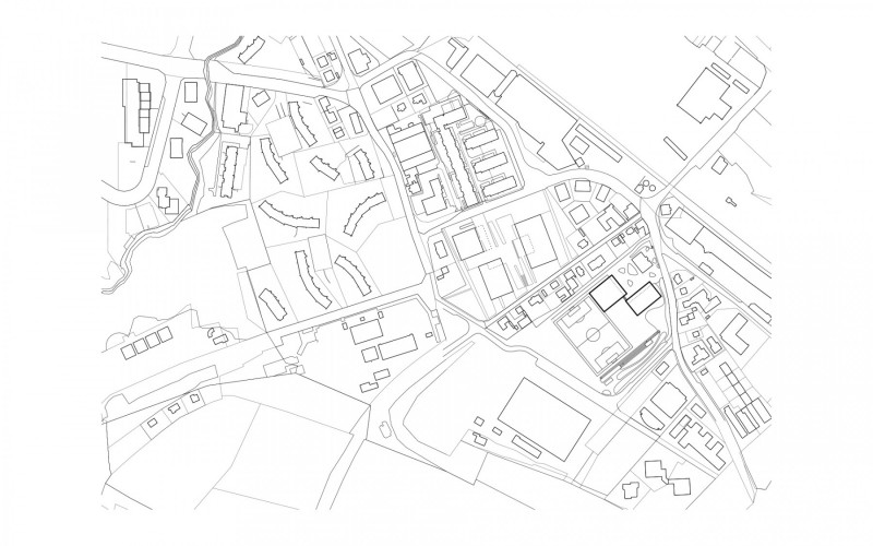
Le site de l’école du Censuy est situé entre la rue du Lac au nord et le parking du Censuy au sud, un quartier caractérisé par des installations publiques et sportives. Une série de logements bordent la parcelle à l’ouest, le long duquel un ancien chemin étroit relie les parkings avec le site de l’école, puis plus loin les quartiers d’habitation.
Le projet veut reconnaître l’importance de ce « chemin des écoliers » en articulant le long de ce dernier le préau de l’école, autour duquel se déploient les autres bâtiments scolaires : l’école existante, la nouvelle école et les salles de sport en relation directe avec la zone sportive existante. Ce nouvel ensemble unitaire permet de réaliser sur le reste de la parcelle un terrain de football et un parc sportif pour les habitants du quartier.
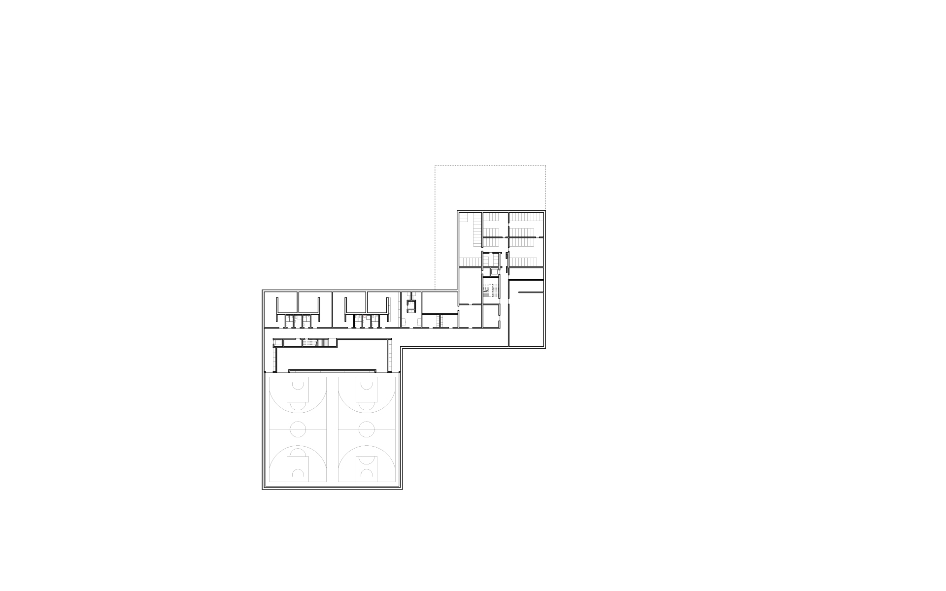
Les salles de classes sont disposées de part et d’autre d’un bloc de services qui ménage à chaque extrémité un vaste espace de dégagement ouvert en façade et pouvant accueillir des activités polyvalentes. Les salles de sport semi- enterrées sont reliées en sous-sol au bâtiment de l’école.

Concours: 2011
Construction: 2012-2015
Maître de l‘Ouvrage: Ville de Renens, Direction des travaux:
Regtec SA, Ingénieur civil: Amsler & Bombelli & associés,
Ingénieur électricien: Perrin & Spaeth, Ingénieur CV: AZ ingénieurs SA, Ingénieur sanitaire: Tecsan, Architecte-paysagiste: L'Atelier de Paysage Jean-Yves Le Baron sàrl, Eclairage: Aebischer & Bovigny

esposito & javet architectes
Rue des Terreaux 10
1003 Lausanne
Google Map

t +41 21 661 27 05
info@esposito-javet.ch