Logements [br]Vernier

1.jpeg
5.jpeg
2.jpeg
1PLAN1ETAGE1A8.jpeg
1PLAN2FACADENORD-SUD-COUPEAA.jpeg
1PLAN3FACADEOUESTBAT2.jpeg
1PLAN4FACADEEST.jpeg
4.jpeg
3.jpeg
1PLAN2-2.jpeg
1PLAN3-1.jpeg
1PLAN4ETAGE1.jpeg
1PLAN5ETAGE2-3.jpeg
1PLAN1COUPETRANSVERSALEACTIVITES.jpeg
1PLAN6ELEVATIONOUEST.jpeg
1PLAN7ELEVATIONEST.jpeg
Sortir du plein écranPasser en mode plein écran
previous arrow
next arrow

Logements, Vernier

Concours : 2018, 3ème prix
En collaboration avec Magizan architectes

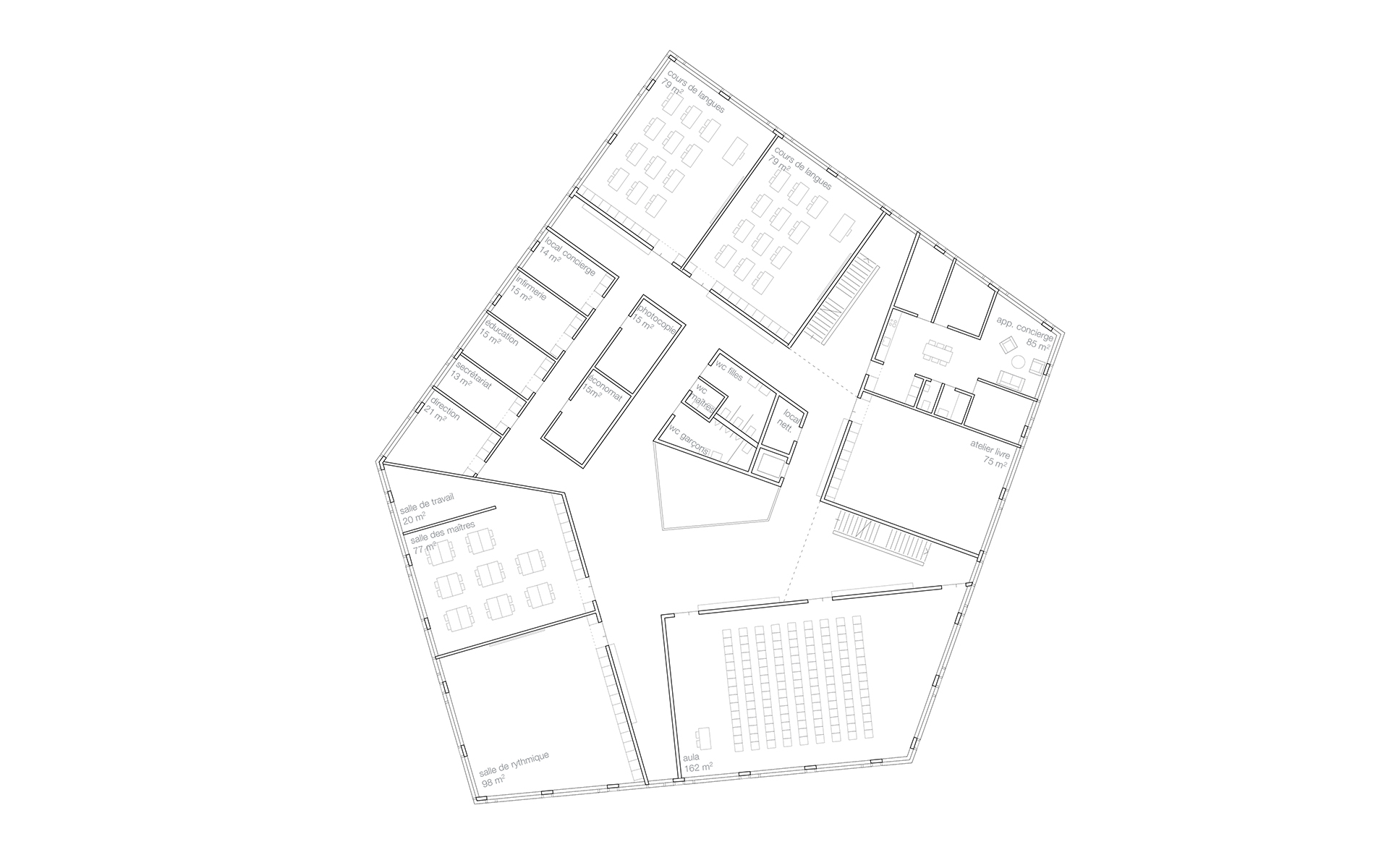
Le projet cherche à consolider l’image urbaine d’un grand îlot ouvert en intégrant les immeubles existants et en proposant un bâtiment parallèle à l’avenue de l’Ain. Il accueille des activités comme écran aux nuisances afin de préserver le Parc et les logements. Le gabarit du bâtiment propose une double lecture : celle qui résonne avec l’échelle de l’avenue de l’Ain et celle en relation avec la morphologie des pièces bâties planifiées. L’école trouve sa place au cœur de ce dispositif et devient ainsi un véritable repère. Ce bâtiment rayonne sur 5 faces, une, accueillant sous un large porte-à-faux le couvert d’entrée, accrochée au cheminement transversal principal de l’ilot, 2 faces sur le parc et 2 autres en relation avec les immeubles existants.
L’enjeu du projet «Concorde» est de réussir une densification forte et mixte, en dégageant un maximum d’espaces libres publics protégés des nuisances de l’avenue de l’Ain. Le bâtiment «barre» forme un écran anti-bruit par rapport à l’avenue de l’Ain, qui protège un grand cœur vert, dans lequel s’implante le groupe scolaire.

esposito & javet architectes
Rue des Terreaux 10
1003 Lausanne
Google Map

t +41 21 661 27 05
info@esposito-javet.ch