Collège, Vers-chez-les-Blanc
Concours : 2003
Réalisation : 2006-2007
Prix Best architects 2015
Mention Distinction romande d’architecture 2011
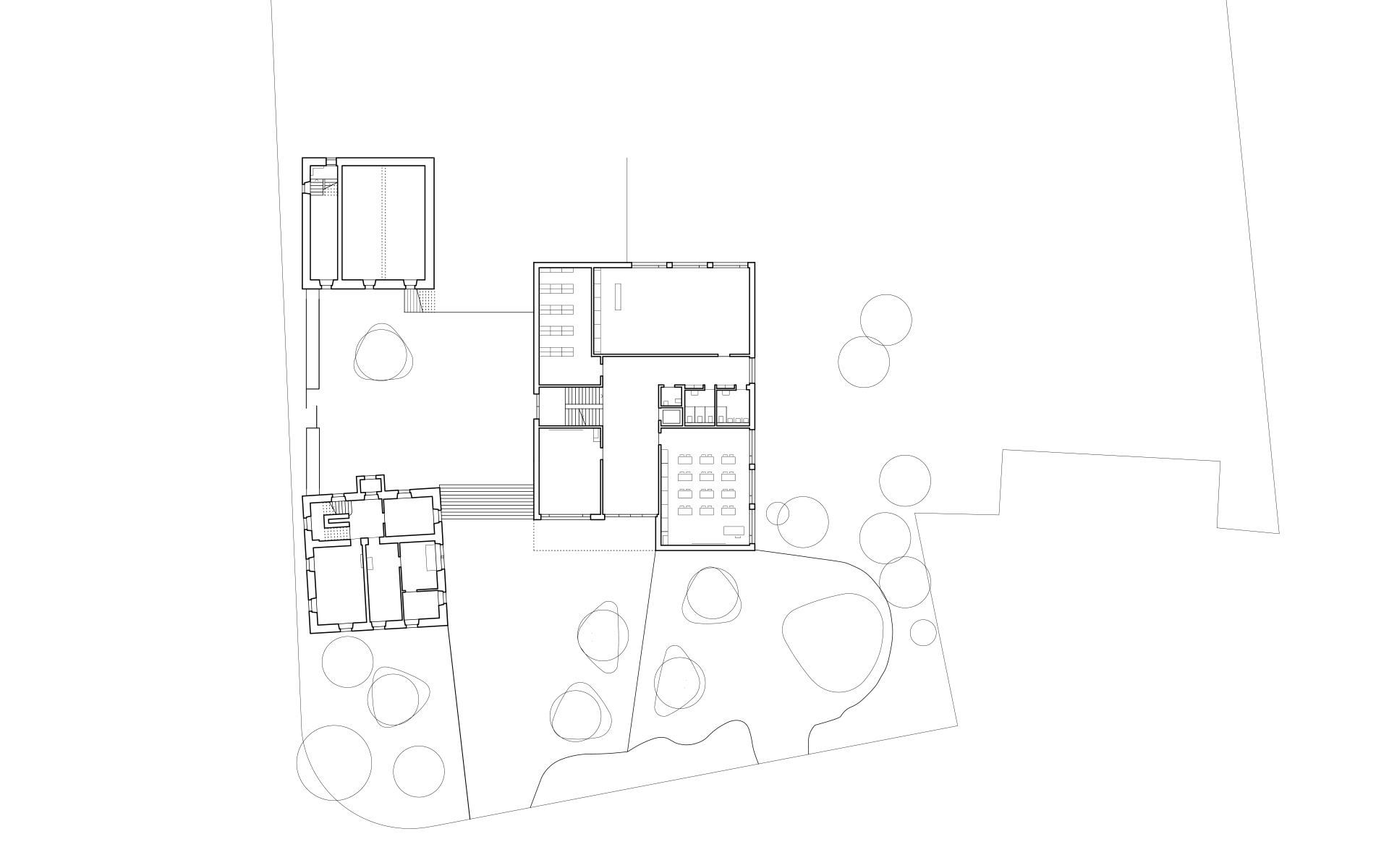
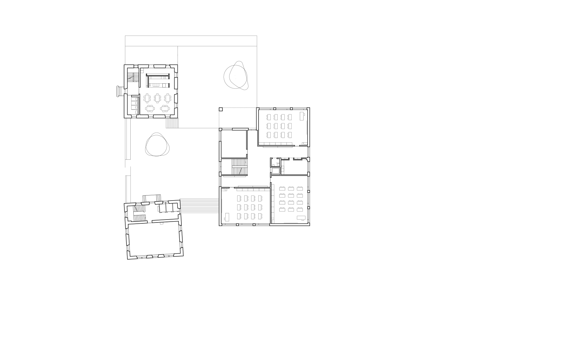
Dans un village aux constructions dispersées caractérisé par l’absence d’espace publique de référence, l’agrandissement du centre scolaire existant devient le prétexte à la création d’un lieu de convergence pour les habitants du lieu.
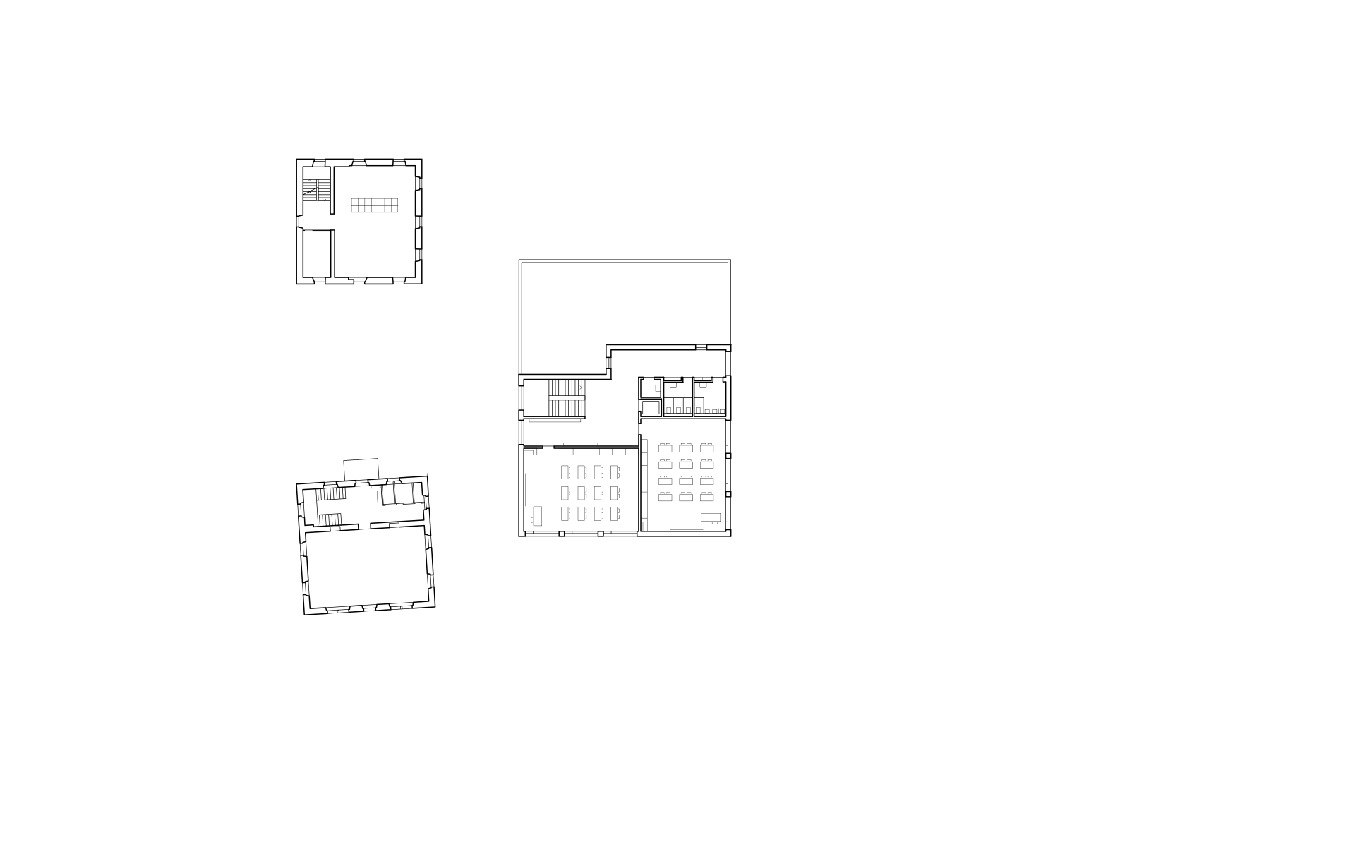
En s’implantant en quinconce par rapport aux volumes existants, la nouvelle école crée un nouvel ensemble qui préserve l’autonomie de chaque édifice et délimite une succession de préaux de caractère et d’ambiance différents s’étageant dans la pente.
Le bâtiment accueillant les nouvelles salles de classe est relié à chacun de ces préaux par les différentes orientations des espaces de distribution et des salles de classe qui rayonnent dans la campagne environnante.
En reprenant l’alignement des lignes de corniche des bâtiments scolaires existants, la volumétrie volontairement retenue du nouvel édifice reprend l’échelle modeste des constructions du village, tout en intégrant des surfaces de salle de classe plus importantes que celles des bâtiments existants.
Le décalage et la proximité des trois bâtiments scolaires favorisent le dialogue entre l’ancien et le moderne, en évitant toute tentation de mimétisme.
Concours: 2003
Construction: 2006-2007
Maître de l‘Ouvrage: Ville de Lausanne
Direction des travaux:
J-P. Aubert, Ingénieur civil: Alberti Ingénieurs SA, Physique du bâtiment: Sorane SA,
Ingénieur électricien: Scherler Ingénieurs-Conseils SA, Ingénieur CVS: AZ Ingénieurs SA








