Salle de spectacles de l'Usine à Gaz et logements [br]Nyon

_DSC2598.jpg
_DSC2603-Pano.jpg
007.jpg
006b.jpg
Usine_a_gaz_14.jpg
Usine_a_gaz_06.jpg
009.jpg
Usine_a_gaz_01.jpg
Schermata2021-07-19alle112458.jpeg
002.jpg
003.jpg
Usine_a_gaz_22.jpg
004.jpg
005.jpg
001.jpg
008.jpg
Usinea Gaz Nyon PLAN 2 REZ.jpg
Usinea Gaz Nyon PLAN 3 ETAGE 1.jpg
UsineaGaz Nyon PLAN 4 COUPE 1 & 2.jpg
Sortir du plein écranPasser en mode plein écran
previous arrow
next arrow

Salle de spectacles de l'Usine à Gaz et logements, Nyon

Concours : 2012
Réalisation : 2017-2021

Usine-Gaz-Nyon-PLAN-1-SITUATION

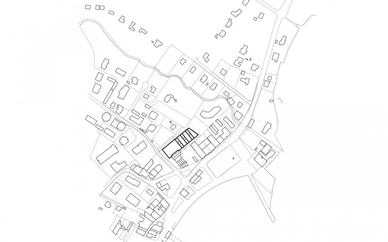
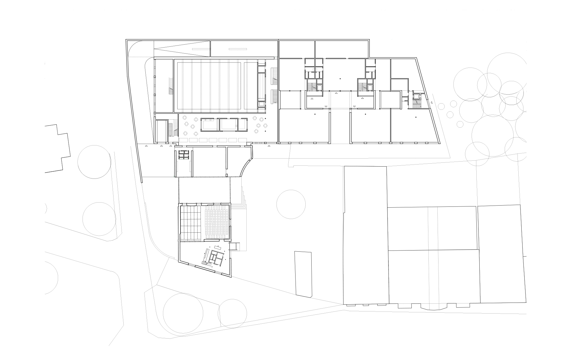
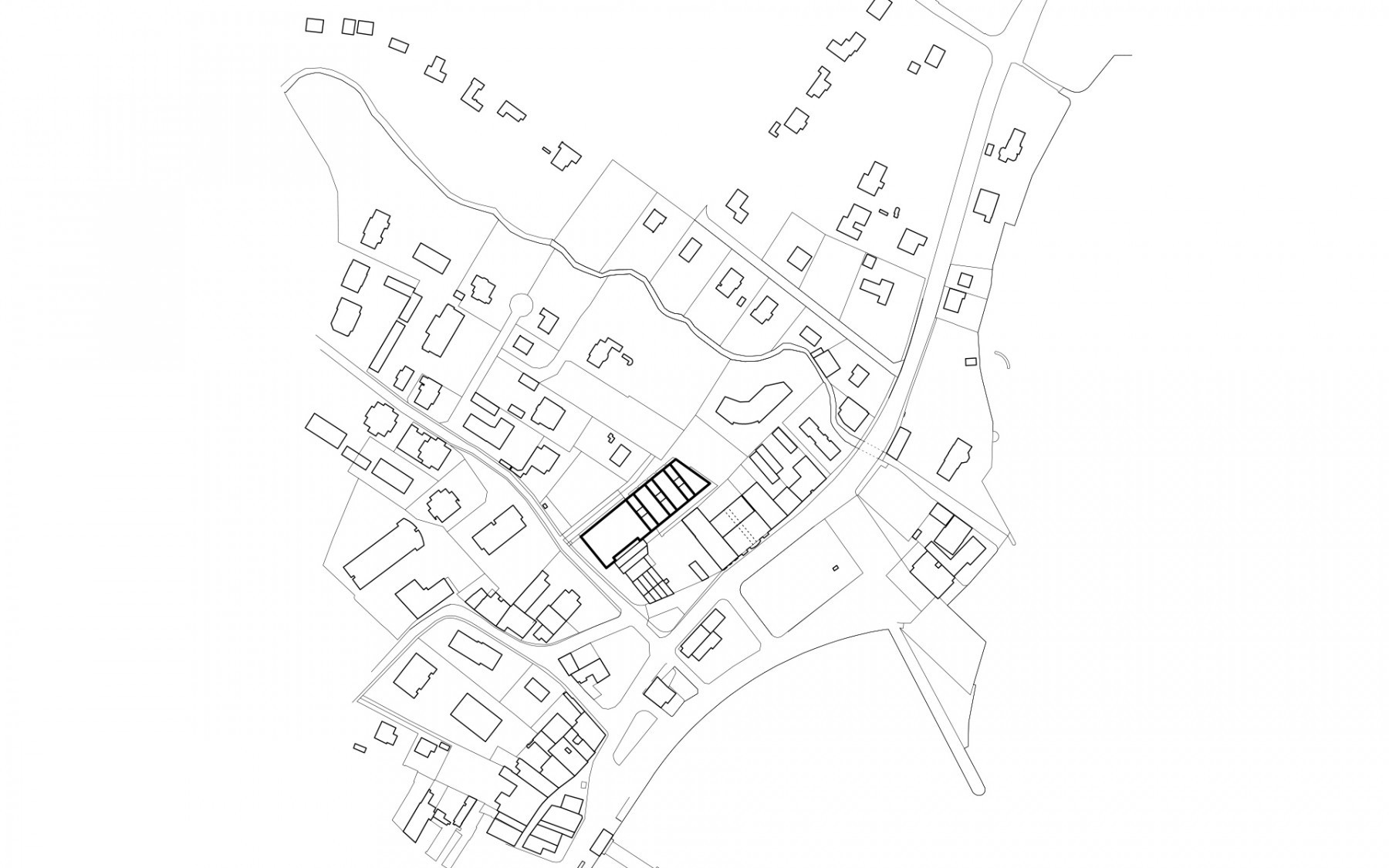
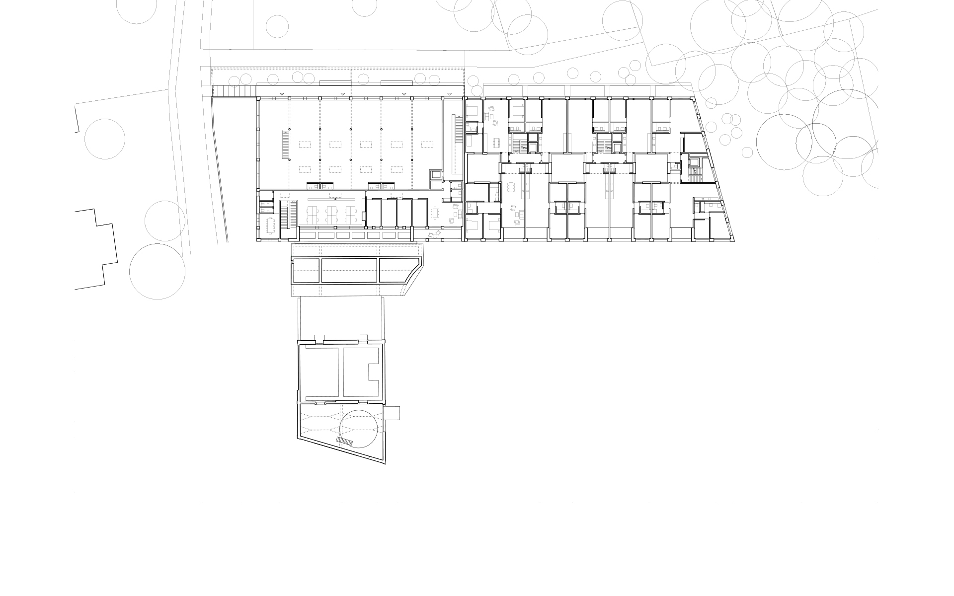
Le plan de quartier «Vy-Creuse-Usine à Gaz-Rive» détermine précisément les possibilités d’implantation volumétrique des constructions, un théâtre et ses annexes à l’ouest, des logements et des surfaces commerciales à l’est, à proximité du lac. La nouvelle place publique en légère pente conduit à l’entrée du nouveau théâtre. Le foyer de la nouvelle salle ainsi que les loges, les dépôts, l’administration et la salle de répétition se distribuent dans l’interstice entre les bâtiments du théâtre existant et la nouvelle salle, permettant de relier les locaux actuels au futur complexe. La salle du théâtre est orthogonale, simple et fonctionnelle. Un accès pour les livraisons et les professionnels du théâtre sont situés à  l’ouest du bâtiment, en liaison avec la rue de la Vy-Creuse. Les logements pour artistes et des surfaces de bureaux prennent place au-dessus du théâtre et sont accessibles par une rue de desserte. Dans la partie est, le rez est dévolu à des surfaces commerciales. 

Concours: 2012
Construction: 2017-2021
Maître de l‘Ouvrage:
Ville de Nyon et Naef Immobilier
Ingénieur civil: Chabloz & partenaires SA et AB ingénieurs SA, Physique du bâtiment:
Sorane SA, Ingénieur électricien: Perrin & Spaeth SA, et Tecnoconsult, Ingénieur CV: Pierre Chuard Ingénieurs Conseils SA et Hirt associés SA, Ingénieur sanitaire: H. Schumacher SA et M. Humbert sàrl, Technique de scène: Changement à vue, Architecte-paysagiste: L'Atelier de Paysage Jean-Yves Le Baron sàrl, Eclairage: Aebischer & Bovigny.

esposito & javet architectes
Rue des Terreaux 10
1003 Lausanne
Google Map

t +41 21 661 27 05
info@esposito-javet.ch