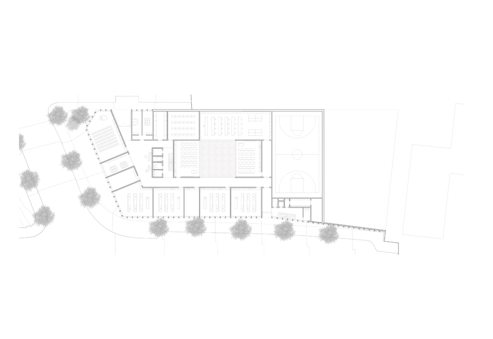
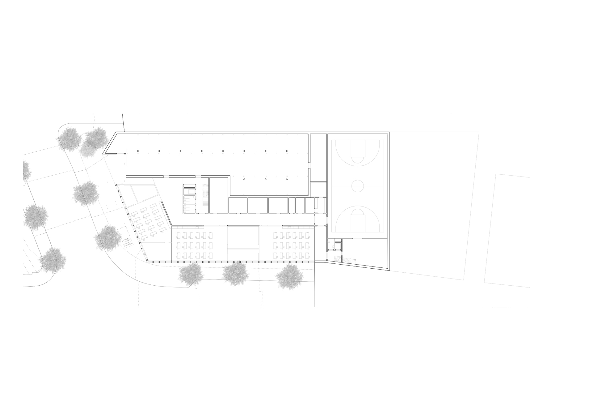
Le bâtiment est relié à son environnement par des accès distincts qui suivent la déclivité des trois rues qui le bordent. Ces accès séparés et indépendants répondent à la demande du Maître d’ouvrage de distinguer et répartir le flux des élèves selon les programmes ou l’utilisation des locaux en dehors des horaires scolaires. L’accès principal de l’école se trouve au niveau de l’esplanade et fait « pendant » à l’entrée du collège des Croix-Rouges. La typologie et l’organisation de l’école est relativement simple : elle tire parti du site et des rues en pente qui la bordent, ainsi que des dégagements sur le paysage urbain et lacustre. Les salles de classes spéciales installées dans le socle s’organisent en « couronne » sur le pourtour du bâtiment autour d’un noyau de circulation verticale et d’un patio. Les salles de classe situées dans la tête émergente s’organisent simplement de part et d’autre d’un couloir central. Les circulations sont réduites à l’essentiel et ponctuées de lumière naturelle pour minimiser l’utilisation de l’éclairage artificiel. Elles sont également pourvues de dégagements sur l’extérieur pour faciliter l’orientation dans le bâtiment et offrir des vues sur le paysage. Cette organisation modulaire permet des rocades entre les différents locaux si le MO le souhaite, sans que le concept de base n'en soit modifié.













